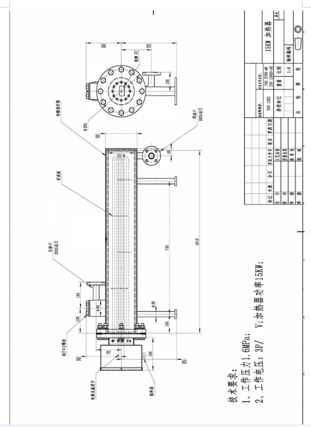
管道电加热器
1、电加热器的主要技术参数
序号 项 目 技术参数及要求 备注
1 电加热器型号 DRF/15-440
2 功率(kW) 15
3 电源 3PH/440V/50Hz
4 工作压力(MPa) 1.6
5 加热介质 重油
6 油温(℃) 入口 65~75
7 油温(℃) 出口 105~115
2、结构要求
1)卧式安装,带底脚,底脚尺寸按附图要求制作。
2)带加热筒体。
3)加热器燃油进/出接口为法兰连接,法兰标准为CB/T 46-2007 DN25 PN16。
4)加热器出厂前在加热管束内部配套电接点温度计1个,设定温度220℃。
5)加热器使用的非金属材料不得使用石棉制品。
【江苏扬天电热设备有限公司】——信息化 数字化 智能化——義飛扬天——防爆电加热器专业制造商——为新时代中国制造加油助力——全国尊贵热线:400-777-5525
3、技术要求
1)设备及附件应满足CCS《钢质海船建造规范》(2018)及相关修改通报的相关要求。
2)上述各项采用GB 4208-2008《外壳防护等级》、GB/T 6388-1986《运输包装收发货标志》、CB/T 3856-1999《船用电加热器具通用技术》标准进行生产。
3)电器设备防护等级为IP44,电器应能承受频率50Hz,试验电压1000V+2倍额定电压且不低于2000V的交流电试验1分钟,无击穿和闪络现象。
4)设备进线连接处配套提供金属电缆填料函。
5)所有连接电缆均为无卤、低烟、阻燃型船用电缆。
6)设备冷态绝缘电阻不小于50MΩ,热态绝缘电阻不小于2 MΩ,并在断电1分钟内测试完毕。
7)电加热管三相线任意两线间的直流电阻应为20Ω左右。
8)外包铁皮包扎严实,无鼓起、凹陷及开裂现象;保温层接缝处无明显缝隙;保温层外观平整,无保温棉裸露现象。
9)加热器的外形及安装尺寸按附图图纸尺寸加工制作。
4、售后服务
电加热器质保期为船厂交船后12个月,如出现质量问题,乙方接到甲方通知后即时到指定地点免费维修。
5、其它约定
在本协议签字后,若一方提出需要补充或更改内容时,应经双方协商,形成书面确认意见。本协议文本及其补充件,甲乙双方各一份,经双方代表签字后,与商务合同具有同等法律效力。

